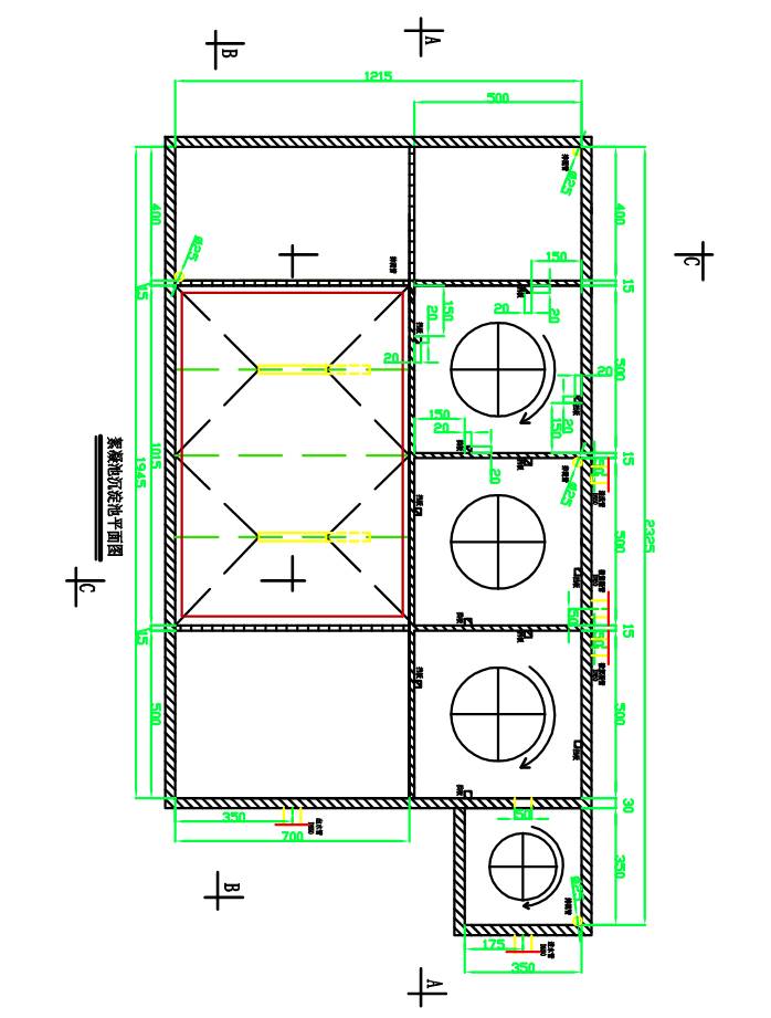
The design drawings of the Mixing and Sedimentation Integral Tank located at the Tianjin Jinhai Lake Field Experimentation Base are consistent with the actual size and structure of the equipment at the site, and are drawn using AutoCAD software
| collect time | 2019/04/08 - 2019/04/09 |
|---|---|
| collect place | Tianjin City |
| data size | 516.7 KiB |
| data format | |
| Coordinate system |
Design drawings for an on-site mixed sedimentation integrated tank.
drawn via AutoCAD.
This dataset is a design drawing of the field equipment, and the field equipment is processed and manufactured according to this drawing.
| # | number | name | type |
| 1 | 2017YFE0114200 | National key R & D plan |
This work is licensed under a
Creative
Commons Attribution 4.0 International License.
| # | title | file size |
|---|---|---|
| 1 | _ncdc_meta_.json | 3.1 KiB |
| 2 | 混合沉淀一体池.dwg | 253.9 KiB |
| 3 | 混合沉淀一体池.pdf | 262.7 KiB |
©Copyright 2005-. Northwest Institute of Eco-Environment and Resources, CAS.
Donggang West Road 320, Lanzhou, Gansu, China (730000)

